A brand new, beautifully crafted 3-bedroom dormer bungalow, built by a bespoke local developer and forming part of an exclusive development of just four homes on a private cul-de-sac on the edge of the highly sought-after village of Norton, Doncaster. Due for completion very soon, this is a rare opportunity to secure a high-specification home in a peaceful village setting with open views beyond.
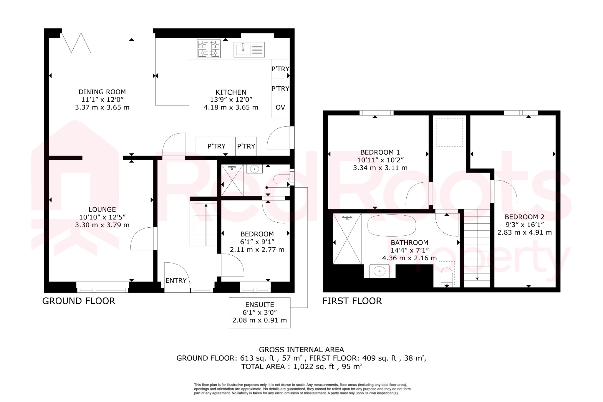
Ground Floor
Step into a traditional hallway finished with large grey ceramic floor tiles that flow seamlessly into the kitchen/dining space. The entire ground floor benefits from underfloor heating controlled by smart thermostats for year-round comfort.
Positioned at the rear of the property, the spacious kitchen/dining room enjoys an abundance of natural light thanks to large bi-fold doors opening onto the garden and a picture window in the kitchen. The kitchen features sleek slate-grey handleless cabinetry, thin marble-effect worktops, generous pantry storage, and a full range of integrated appliances, including a microwave, electric fan oven, fridge/freezer, dishwasher, washing machine, induction hob, and black extractor fan. A side door provides convenient access to the driveway.
The dining area can comfortably accommodate a 6+ seater table, with the bi-fold doors creating a perfect indoor - outdoor entertaining space.
The living room sits at the front of the home and can be accessed from the hallway or through the dining room. Finished with the same luxury carpeting as the bedrooms and stairs, it offers a calm, blank canvas ready for the new owners to make their own.
Bedrooms
Bedroom 3 is located on the ground floor at the front of the property and benefits from its own contemporary en-suite, complete with a double shower and marble-tiled features.
Bedrooms 1 and 2 are positioned on the first floor - both doubles, each with a dormer window overlooking the garden and enjoying open field views to the rear.
Family Bathroom
A truly stunning and spacious family bathroom, showcasing a large walk-in shower, freestanding bath, vanity unit with basin, and elegant marble-style tiling.
Outside
To the front, the property features a low-maintenance pebbled garden, block-paved pathway, and a generous triple driveway. Gated access leads to the large rear garden which will be completed with a porcelain-tiled patio, fresh turf, and secure fencing. The rear enjoys orchard views with open fields beyond - an idyllic backdrop.
Norton
Norton, Doncaster, is a charming and highly sought-after village with picturesque surroundings, and excellent local amenities. With countryside walks, cosy pubs, a well-regarded primary school, and quick access to major motorway links including the A1(M) and M18, it offers superb connectivity for commuters. The village provides the perfect blend of rural tranquillity and everyday convenience - ideal for families, professionals, and anyone seeking a peaceful village lifestyle.
Expected EPC: A