A brand new, beautifully crafted 3-bedroom dormer bungalow, built by a bespoke local developer and forming part of an exclusive development of just four homes on a private cul-de-sac on the edge of the highly sought-after village of Norton, Doncaster. Due for completion very soon, this is a rare opportunity to secure a high-specification home in a peaceful village setting with open views beyond.
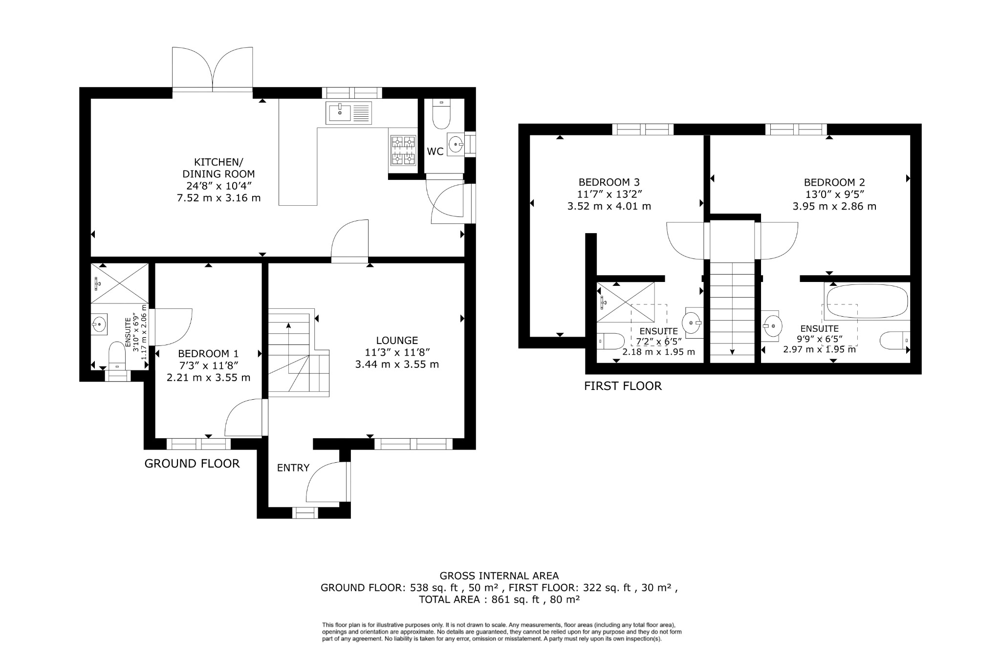
Ground Floor
As you enter the home, you step first into the porch area, which leads directly into the living room. This welcoming lounge sits at the front of the property and features the same luxury carpeting as the bedrooms and stairs, creating a warm and cohesive feel. From here, you’ll find access to the staircase to the first floor, as well as entry into both the kitchen/dining room and the ground floor bedroom.
Positioned at the rear, the kitchen/dining room is flooded with natural light and features french doors opening onto the garden, as well as a picture window within the kitchen area. Finished with large grey ceramic floor tiles and underfloor heating, the space includes sleek slate-grey handleless cabinetry, thin marble-effect worktops, lots of pantry storage, and a full range of integrated appliances: microwave, electric fan oven, fridge/freezer, dishwasher, washing machine, induction hob, and black extractor fan. A downstairs WC is neatly tucked within the kitchen/dining area for added convenience, and a side door provides direct access to the driveway.
The dining space comfortably accommodates a 6+ seater table, with the French doors creating a lovely outlook over the garden.
Bedrooms
Bedroom 1, located on the ground floor at the front of the home, benefits from its own contemporary en-suite, complete with a double shower and marble-tiled features.
Upstairs, Bedrooms 2 and 3 are both generous spaces, each enjoying private en-suites. Both rooms feature dormer windows overlooking the rear garden and benefit from open field views beyond.
Outside
To the front, the home offers a low-maintenance pebbled garden, block-paved pathway, and a generous triple driveway. Gated access leads to the large rear garden, which will be completed with a porcelain-tiled patio, fresh turf, and secure fencing. The rear enjoys orchard views with open fields beyond - an idyllic backdrop.
Norton
Norton, Doncaster, is a charming and highly sought-after village with picturesque surroundings, and excellent local amenities. With countryside walks, cosy pubs, a well-regarded primary school, and quick access to major motorway links including the A1(M) and M18, it offers superb connectivity for commuters. The village provides the perfect blend of rural tranquillity and everyday convenience - ideal for families, professionals, and anyone seeking a peaceful village lifestyle.
Please note: Some internal images used are stock photos intended to demonstrate the developer’s finishes and specification. Actual layout and final details may vary.
Expected EPC: A