Positioned on a quiet cul-de-sac within the sought-after Warren Park development in Bessacarr, this stylish three-bedroom detached home was built in 2024 by Persimmon Homes and enhanced with thoughtful upgrades by the current owners. Bordering the beautiful Potteric Carr Nature Reserve, the property offers modern living in a peaceful setting.
Entrance Hallway & Features Throughout
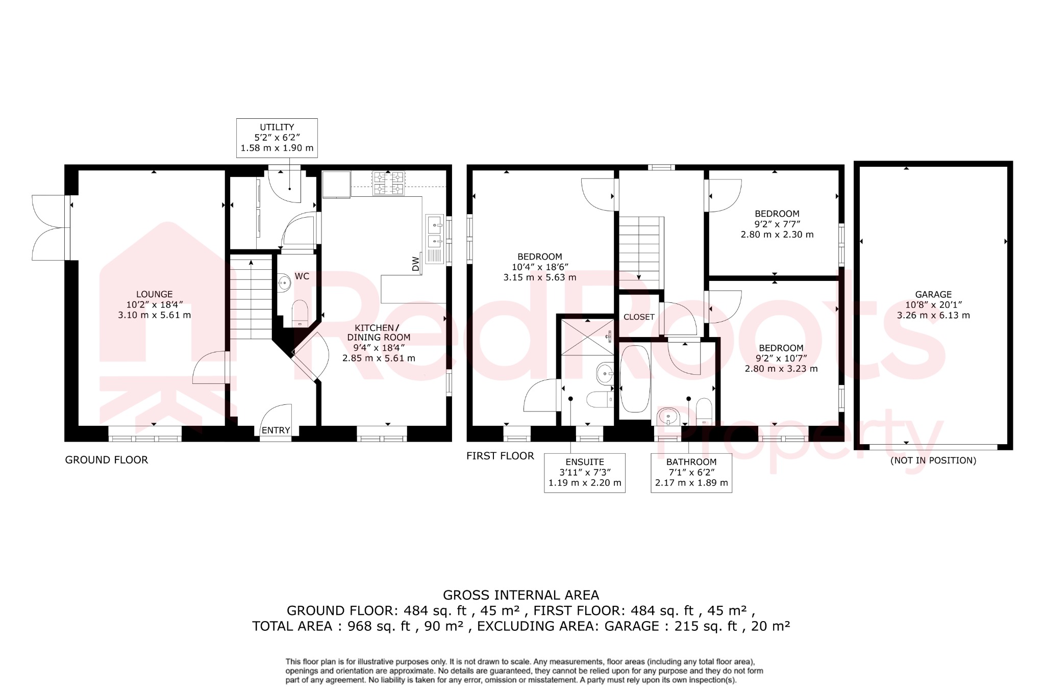
On entering, you are welcomed by a traditional hallway, with the staircase ahead and doors to the living room and kitchen/diner on either side. The home features white shutter blinds on the ground floor, master bedroom, and bathrooms, providing privacy and a classic, timeless finish.
Living Room
Stretching the full length of the home, the living room is bright and inviting, with a front-facing window and patio doors that open directly into the garden.
Kitchen & Dining Room
Also running the full length of the property, the kitchen/dining room is a light-filled space with three windows offering dual aspect views. The kitchen is fitted with modern white gloss handleless units, concrete-effect worktops, and herringbone vinyl flooring, complete with a stainless-steel gas hob, extractor hood, single electric fan oven, and a bowl-and-a-half sink with chrome mixer tap.
There is space for a fridge/freezer and dishwasher, while the dining area comfortably accommodates a six-seater table. A walk-in pantry cupboard provides valuable additional storage.
Utility Room
Finished to match the kitchen, the utility offers worktop space, extra cabinetry, and plumbing for a washing machine and dryer. There is also an external door to the rear garden.
Downstairs WC
A convenient cloakroom fitted with a modern white toilet and basin, finished with neutral splashback tiling and herringbone vinyl flooring.
Master Bedroom with En-Suite
The spacious master bedroom spans the entire depth of the home and benefits from dual aspect windows overlooking both the front and rear gardens. Currently staged with a king-size bed and a generous wardrobe area, it also enjoys a private en-suite fitted with a double shower enclosure, chrome thermostatic shower, light grey marble-effect tiling, and herringbone vinyl flooring.
Bedroom Two & Three
Bedroom two is a good-sized double positioned at the front of the home, while bedroom three is a versatile single, ideal as a nursery, guest room, or office.
Family Bathroom
The main bathroom is finished with grey marble-effect tiling and fitted with a modern white suite including a bath, basin, and WC.
Additional Features
The home also benefits from a partially boarded loft, providing valuable extra storage space.
Outdoors
Garden
The rear garden has been landscaped to create a low-maintenance yet attractive space, featuring high-quality astroturf, with a paved patio outside the patio doors and another seating area at the bottom of the garden, connected by a central pathway. A border of planting adds seasonal colour and charm. To the front and side, established shrubs provide greenery and kerb appeal.
Garage & Parking
The garage sits at the bottom of the garden and comes complete with power, lighting, and pre-wiring for EV charging. A private driveway space is located in front of the garage, with further visitors’ parking available around the cul-de-sac.
Bessacarr
Bessacarr offers residents outstanding convenience, with a wide range of amenities, services, and excellent transport links right on the doorstep. Just a short distance from the Lakeside Shopping Outlet and Doncaster City Centre, the area provides easy access to an array of shops, supermarkets, restaurants, and leisure activities. For golf enthusiasts, Doncaster Golf Club is practically on the property’s doorstep, along with scenic walking routes, offering the ultimate convenience. The property’s proximity to both the M18 and A1 motorways ensures seamless travel, making commuting or exploring the wider region both simple and efficient.