This delightful three-bedroom detached property offers spacious and versatile accommodation, set within beautiful mature gardens to both the front and rear. Enjoying a private gated driveway and detached garage, the home provides secure off-road parking and a peaceful setting, all while being offered to the market with no onward chain.
Ground Floor
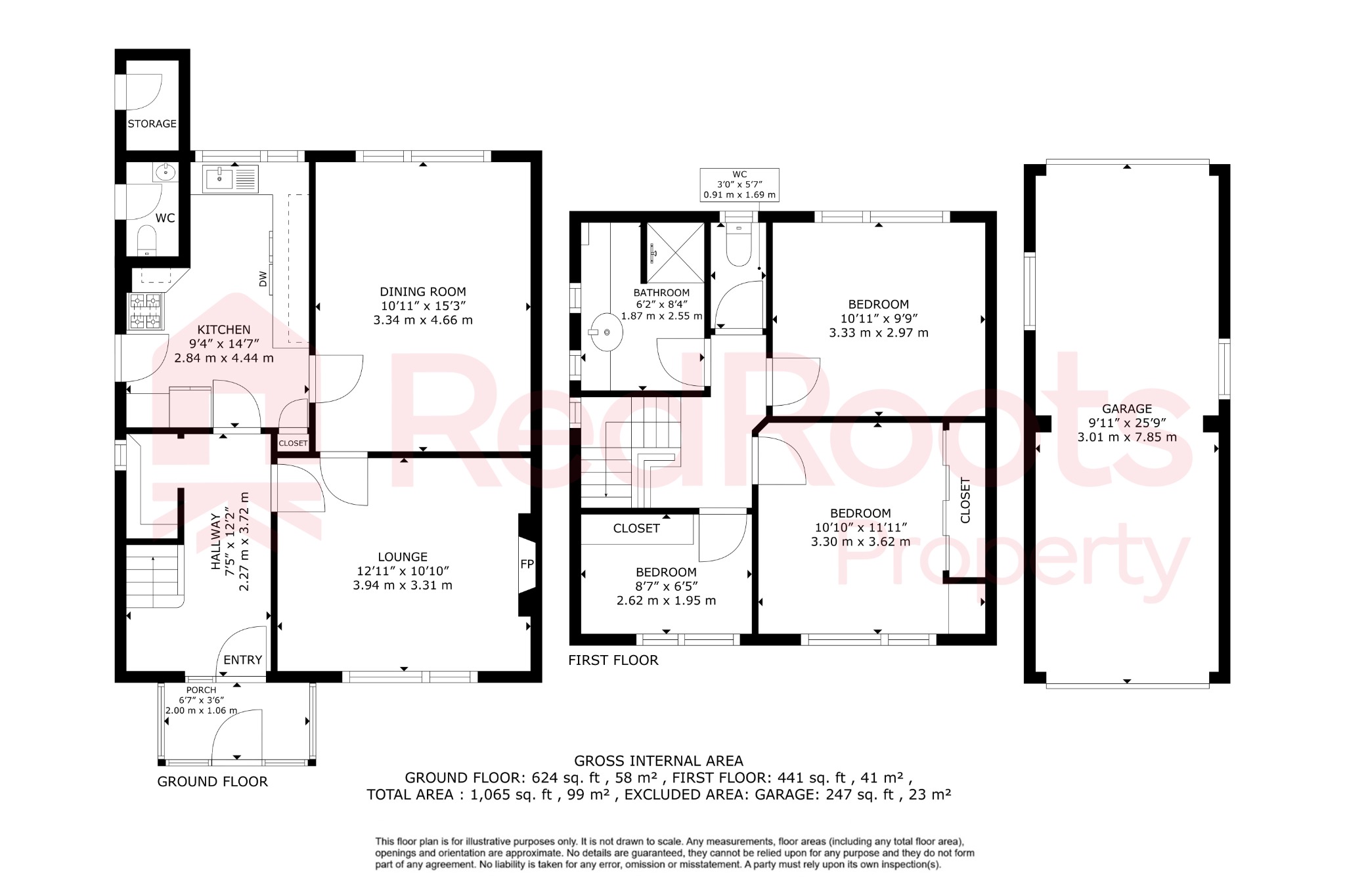
A welcoming entrance porch opens into the entrance hallway, which provides access to the main ground floor rooms and staircase to the first floor.
To the front of the property, the bright and airy lounge features a large window overlooking the front garden, creating a warm and inviting living space ideal for relaxation. Adjacent to this is a separate dining room, perfect for family meals and entertaining guests, with views over the rear garden.
The kitchen is fitted with a range of wall and base units, offering ample storage and workspace. There is space for freestanding appliances and direct access to the rear garden, making it ideal for outdoor dining or summer entertaining.
Externally, there is a useful outdoor store providing additional storage and an external toilet, conveniently positioned for use when gardening or spending time outdoors.
First Floor
The first floor comprises three generously sized bedrooms, each offering pleasant views over the gardens and plenty of natural light. The family shower room is fitted with a modern suite, including a walk-in shower, wash basin, and WC, with contemporary tiling and finishes.
Outside
The property sits on a generous plot with mature gardens to both the front and rear. The front garden is enclosed by gates and mature hedging, offering a high degree of privacy, and features a driveway providing ample off-road parking and access to the detached garage.
The rear garden is a particular highlight, well-established with a variety of shrubs, plants, and lawned areas, creating a peaceful retreat ideal for families or those who enjoy gardening. There is also a paved patio area perfect for outdoor seating or alfresco dining.
Location : Wath upon Dearne
Located in the popular town of Wath upon Dearne, this property enjoys a convenient and well-connected setting. Wath offers a strong sense of community and an excellent range of local amenities, including shops, cafés, and supermarkets, as well as well-regarded primary and secondary schools. The nearby Manvers Lake and Dearne Valley Nature Reserve provide scenic walking and cycling routes, while Wath Town Centre offers a selection of restaurants and pubs for socialising.
For commuters, the area provides easy access to major road networks including the A633, A6023, and M1 motorway, as well as good public transport links to Rotherham, Barnsley, Doncaster, and Sheffield. This blend of accessibility, local charm, and green space makes Wath upon Dearne a desirable location for families and professionals alike.