Situated in the semi-rural village of Kirkhouse Green, this unique three-bedroom detached home enjoys a truly enviable position adjacent to the New Junction Canal, offering open field views and an exceptionally large garden. Recently renovated throughout and offered with no onward chain, the property blends character features with modern finishes, making it a rare opportunity for buyers seeking space, privacy and countryside surroundings.
Ground Floor
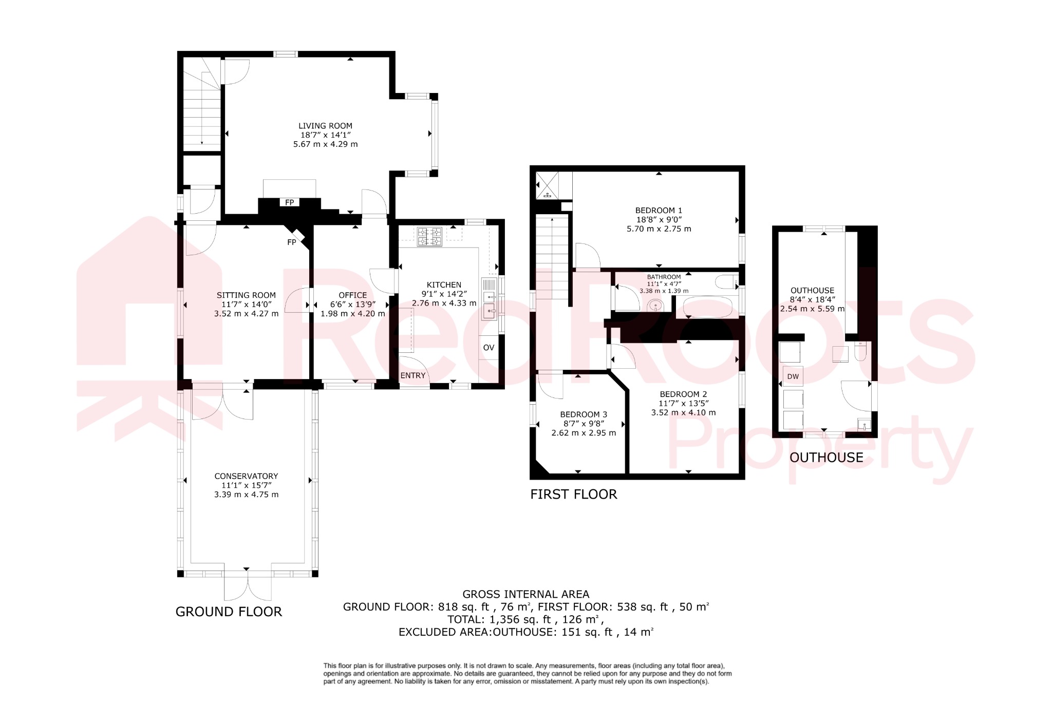
The heart of the home is the recently fitted kitchen, finished with stylish light grey cabinetry, oak-effect worktops and neutral slate-effect splashback tiling. Exposed ceiling beams add character, while integrated appliances include a five-burner gas hob, high-level oven and microwave, dishwasher, and fridge/freezer. A fitted breakfast bar provides an informal dining space, with a window overlooking the driveway and external access leading directly out to the surrounding gardens.
The ground floor also benefits from two generous reception rooms, both featuring open fires, ideal for cosy evenings. A further versatile reception room offers flexibility for use as a dining room, home office or snug. To the rear, the conservatory enjoys views across the garden and features patio doors opening onto the outdoor space. Access to the cellar is also available from the ground floor.
First Floor
The first floor hosts three well-proportioned double bedrooms, all recently redecorated and carpeted. The principal bedroom benefits from an en-suite shower room with a modern shower cubicle. The family bathroom is fully tiled and fitted with a contemporary three-piece suite, complemented by a polished chrome heated towel rail.
Outdoors
Externally, the property continues to impress. A gated driveway to the side of the home provides ample off-road parking for up to six vehicles. The extensive rear and side gardens feature a variety of outbuildings and extend down to a rear paddock, making the space ideal for hobby farmers, keen gardeners or families who enjoy the outdoors. Mature trees and shrubs frame the garden, alongside generous lawned areas, creating a private and picturesque setting.
Area Summary
Kirkhouse Green is a peaceful semi-rural hamlet in the Doncaster district of South Yorkshire, surrounded by open countryside and close to the nearby villages of Braithwaite, Sykehouse & Moss.
Residents enjoy a tranquil setting with scenic views, easy access to country walks and outdoor pursuits, yet still benefit from good connections to local amenities in Barnby Dunn, Doncaster and surrounding towns. The community is characterised by predominantly detached homes and rural living, offering a relaxed lifestyle while remaining within reach of schools, transport links and services.
This peaceful location is ideal for those seeking a countryside feel with the convenience of nearby towns and villages.