Welcome to this deceptively spacious three-bedroom mid-terrace home situated in the heart of Bentley, Doncaster. Perfectly suited for first-time buyers or investors, this property is offered with no onward chain, presenting an excellent opportunity to move straight in or begin generating rental income without delay.
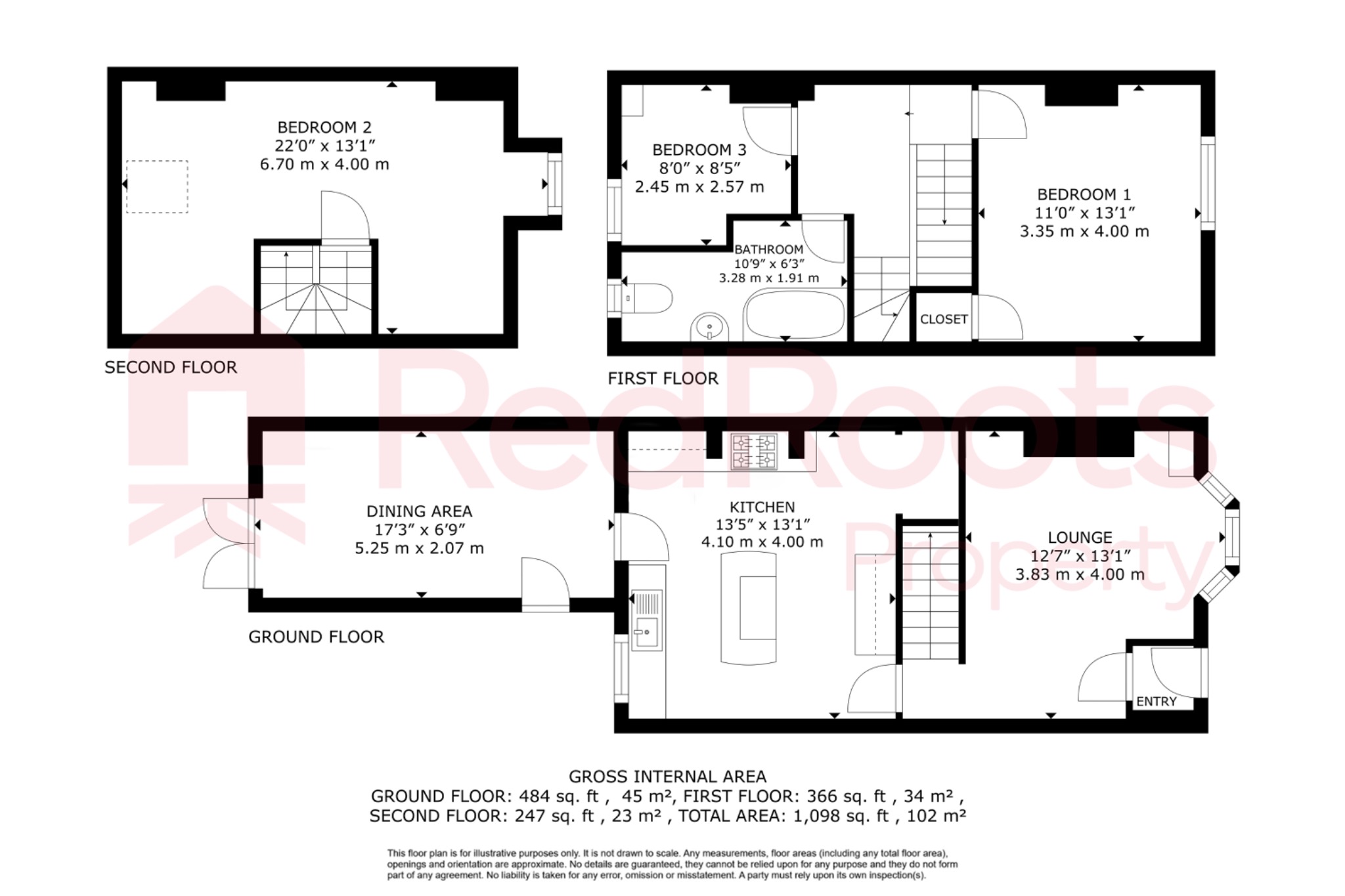
One of the stand-out features of this property is its versatility and thoughtful design, spread across three floors. The home has been extended to the rear, creating additional living space while maintaining its warm and inviting appeal. Nicely decorated throughout, the property is ready for its new owners to add their personal touch.
On the ground floor, you will find two bright and spacious reception rooms. These versatile spaces are perfect for entertaining, relaxing with family, or even setting up a home office. The modern kitchen, also located on this floor, has been fitted with contemporary units and worktops, offering both style and practicality for those who enjoy cooking or hosting. The kitchen leads seamlessly to the extension, which enhances the overall flow and usability of the living spaces.
Heading upstairs to the first floor, there are two generously sized bedrooms, each offering ample natural light and comfortable proportions. They are ideal for use as bedrooms, guest rooms, or even a home office or hobby space. The family bathroom is also located on this level, fitted with a suite that includes a bathtub, WC, and washbasin, all presented in good condition.
The second floor is where you will find the third bedroom, a cleverly designed space that spans the top of the house. This room benefits from additional privacy and could serve as a master bedroom, teenagers' retreat, or even an inspiring workspace.
The property is located in Bentley. Residents will appreciate its close proximity to a range of local amenities, including shops, schools, and eateries. For those who commute or enjoy travelling, the property is conveniently situated near main arterial routes, allowing for easy access to nearby towns and cities.
Externally, the property offers a low-maintenance rear garden, making it an ideal spot for outdoor dining, relaxing, or simply enjoying some fresh air. The home’s kerb appeal is further enhanced by its well-maintained exterior, reflecting the care and attention that has been given to the property as a whole.
This mid-terrace home ticks a lot of boxes for those looking for a property that combines space, modern living, and convenience. The absence of an onward chain adds yet another layer of appeal, enabling a quicker and smoother purchase process.
Whether you are stepping onto the property ladder for the first time, seeking a family home, or looking for a promising investment opportunity, this property offers something for everyone. With its deceptively spacious interiors, modern kitchen, and excellent location, it is a home that must be seen to be fully appreciated.
Don’t miss out—contact us today to arrange a viewing and see for yourself why this home in Bentley is the ideal choice.