4 bed terraced house for sale in South Elmsall, Pontefract, West Yorkshire, WF9 See map
£130,000
4
1
2
Key features
- 4 Double Bedrooms
- Open Plan Living Dining Area
- Over 1,200sq/ft of Living Accommodation
- Well connected to South Elmsall and Moorthorpe Train Station
- Local Countryside Walks Nearby
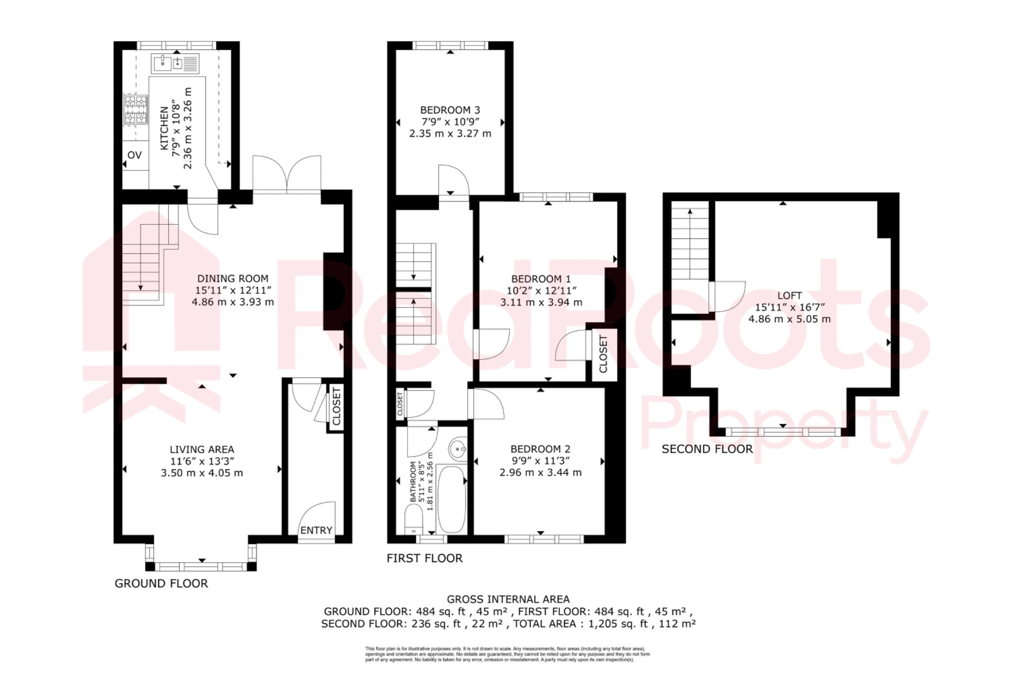
Floorplan

1
Virtual Tour
Welcome to this lovely four-bedroom home on Broadway, South Elmsall.
If you're searching for a home with plenty of space for a growing family, or perhaps just enjoy having extra room, then this property could be just what you've been looking for. With a guide price of £130,000 to £140,000, it...
If you're searching for a home with plenty of space for a growing family, or perhaps just enjoy having extra room, then this property could be just what you've been looking for. With a guide price of £130,000 to £140,000, it...
Further details
- New Listing: Launched in the last 10 days
- Status: Available
- Tenure: Freehold
- Parking spaces: On Street
- Outside spaces: Terrace
- Reference: 701090
What else you need to know?
- Electricity supply: Mains supply
- Heating supply: Gas mains
- Sewerage: Mains
- Water supply: Mains
























