A beautifully appointed six-bedroom detached family home offering stylish, high-spec finishes across three spacious floors - set within an exclusive cul-de-sac in the sought-after market town of Crowle.
From the moment you step inside, this home impresses with its generous layout, high-end fixtures, and seamless blend of comfort and contemporary design. With three bathrooms, multiple reception spaces, and an outstanding open-plan kitchen at its heart, this property delivers versatile and luxurious living, perfect for modern family life.
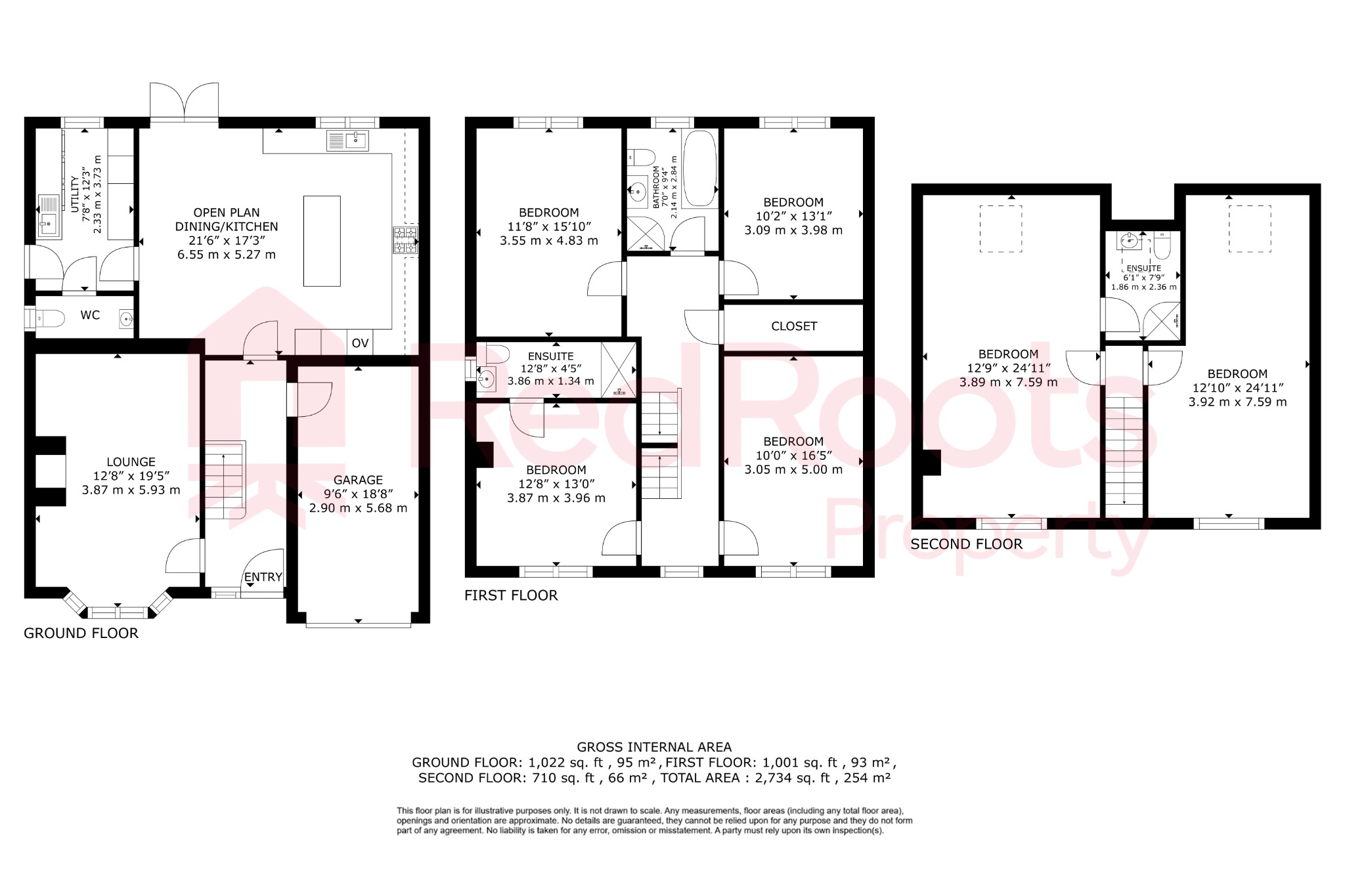
Entrance Hall
Step inside this impressive home and you’re welcomed by a spacious entrance hall finished with striking large-format marble-effect tiles. A staircase leads to the upper floors, and internal access to the integral garage provides convenient, secure storage and parking.
Living Room
To the front of the property, the generous living room is filled with natural light from large windows. A chimney breast adds character and creates a cosy focal point, making it a comfortable space to unwind or entertain.
Kitchen / Dining / Family Room
To the rear, the stunning open-plan kitchen, dining and family space is the true heart of the home. The kitchen is finished with contemporary anthracite handleless cabinetry, offering ample storage including a dedicated pantry section. Elegant marble-effect laminate worktops provide a sleek contrast, while a central island with breakfast bar creates a stylish and sociable focal point.
Integrated appliances include a high-level double oven and microwave, fridge/freezer, dishwasher, five-ring gas hob, and extractor fan. An anthracite designer radiator adds a modern finishing touch to the dining area. Wide patio doors open onto the garden, offering a seamless connection between indoor and outdoor living.
Utility Room & WC
Adjoining the kitchen is a generous utility room, fitted with matching anthracite units and marble-effect flooring. There’s space for both a washing machine and tumble dryer, along with a convenient sink and external garden access. A separate WC is located nearby, finished with the same cohesive marble tiling
Ground Floor Features
Throughout the ground floor, spotlights provide bright, even lighting, and underfloor heating ensures a comfortable living environment. Large marble-effect tiles flow through the hallway, kitchen, utility, and WC, giving the space a refined and cohesive feel.
First Floor
Master Bedroom & En-Suite
The spacious master bedroom offers a luxurious and peaceful retreat. Its private en-suite is finished to an exceptional standard, featuring a light oak vanity unit with integrated basin, a matching toilet suite, a matt black towel radiator, and a sleek black thermostatic waterfall shower. Neutral wall tiles complete the space with a calm, contemporary feel.
Bedrooms Two, Three & Four
Three further generously sized double bedrooms offer plenty of space for family members or guests. Each room is well-lit and versatile, ideal for use as bedrooms, a nursery, guest accommodation, or even a home office setup - designed to suit changing family needs over time.
Family Bathroom
The stylish family bathroom features a modern black and white contrast vanity unit and bath suite. A corner shower cubicle houses a black waterfall shower, while a matching black towel radiator adds a bold finishing touch. Grey contrast tiling runs throughout, with textured brick-effect tiles in the shower cubicle, combining functionality with standout design.
Second Floor
On the top floor, two generous double bedrooms are flooded with light thanks to a Velux window on one side and a Dormer window on the other. One of these bedrooms benefits from its own en-suite shower room, which includes a corner shower cubicle with a modern waterfall shower and a contemporary towel radiator, offering guests or older children added privacy and comfort.
External
Outside, the home features a double-width driveway providing ample off-road parking, along with an integral garage. The rear garden is designed for easy maintenance, offering a private and peaceful space to relax or entertain.
Crowle
Crowle is a small market town in North Lincolnshire, offering a perfect balance of rural charm and modern amenities. Located just a short drive from Scunthorpe, it provides excellent transport links, with the M180 nearby for easy access to Doncaster, Hull, and beyond. Crowle railway station connects residents to Scunthorpe, Doncaster, and Sheffield, making it an ideal location for commuters and families alike.
The town has a strong community feel, with local shops, pubs, and well-regarded schools. Surrounded by beautiful countryside, it’s perfect for outdoor enthusiasts. With a mix of character properties and modern homes, Crowle is an ideal location for families and professionals seeking a peaceful yet well-connected place to live.