Sold STC
4 bed semi-detached house for sale in School Street, Great Houghton, Barnsley See map
Offers over £230,000
4
3
3
Key features
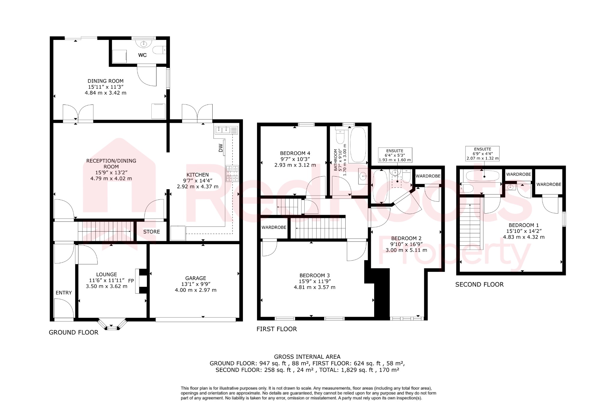
- 4 Large Double Bedrooms
- 3 Reception Rooms
- 3 Bathrooms & Seperate WC
- 2 Bedrooms with two en-suites
- Private Driveway with Single Garage
- Scenic Private Gardens Overlooking Fields
- Semi Rural Location
Floorplan

1
Virtual Tour
Presenting a truly unique four-bedroom family home located on School Street in the heart of Great Houghton, Barnsley. This property effortlessly combines modern comforts with distinctive features, offering an ideal space for both family living and entertaining.
As you approach, the private...
As you approach, the private...
Further details
- Status: Sold STC
- Council tax band: A
- Tenure: Freehold
- Parking spaces: Off Street
- Outside spaces: Terrace
- Reference: 655628
What else you need to know?
- Broadband: Cable
- Electricity supply: Mains supply
- Heating supply: Other
- Sewerage: Mains
- Water supply: Mains

























